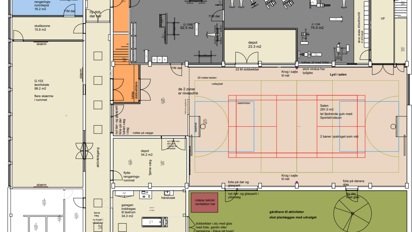
Nye idrætsfaciliteter på vej til Niels Bohrs Allé

I løbet af 2026 vil det nuværende auditorium G.106B og omkringliggende lokaler blive omdannet til moderne idrætsfaciliteter.

Markant kvalitetsløft

Der er nyt på vej til Niels Bohrs Allé, da det nuværende auditorium G.106B i løbet af efteråret bliver omdannet til en ny idrætshal med tilhørende fitnesslokaler. 

De nye faciliteter bliver et markant kvalitetsløft for både dig som studerende men også medarbejdere.

Længe ønske om bedre faciliteter

Der har i mange år været et ønske om indendørs idrætsfaciliteter på Niels Bohrs Allé, hvor du i dag er nødt til at tage til Videnbyen ved SDU for at kunne bruge en idrætshal i forbindelse med undervisningen på uddannelser som fx fysioterapeut, ergoterapeut, lærer og pædagog.

Samtidig har der længe været et ønske om at udbygge og forbedre UCL's fitness-område, som pt. er placeret i kælderen i sydfløjen på Niels Bohrs Allé.

Brede anvendelsesmuligheder

Inden for de almindelige undervisningstimer i hverdagene vil faciliteterne ofte være booket af uddannelser, hvor idræt, bevægelse og sundhed indgår som en naturlig del af undervisningen. Men det bliver også muligt for dig som studerende at booke hallen til diverse sportsaktiviteter uden for almindelige undervisningstimer.

Samtidig vil det også muligt for dig at benytte de nye fitness-faciliteter på samme vilkår som i dag, hvor du kan bruge dem fra tidlig morgen til sen aften alle ugens dage.

Tidshorisont

Det er forventningen, at byggearbejdet påbegyndes i januar 2026, forudsat at udbudsprojektet forløber som planlagt, så byggeriet står færdigt inden sommeren 2026.